万益资讯网
抱着可以做大横厅买的房,结果收房时……
设计师人厘米酱
2025-11-12 12:35:23
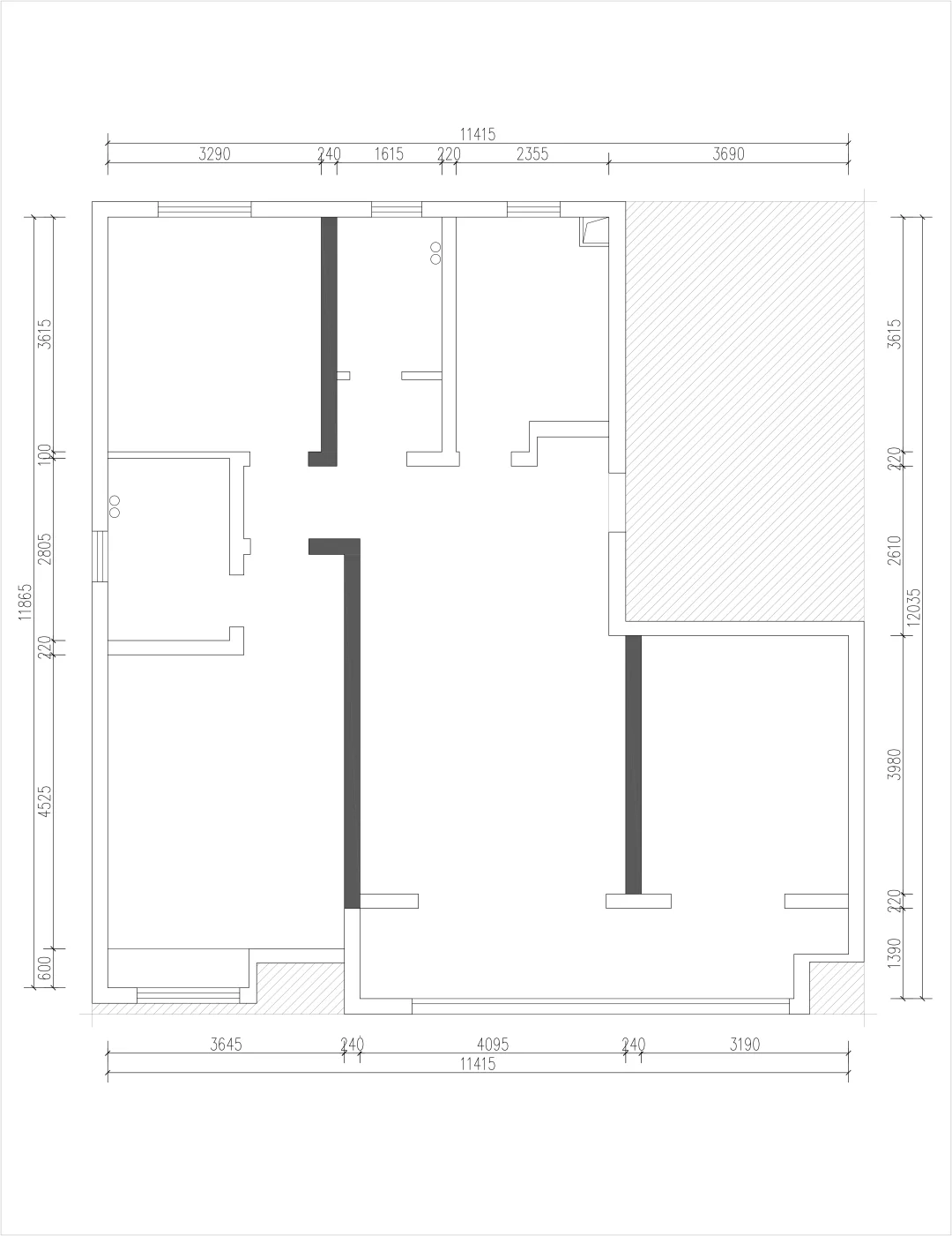
我家承重墙不多!但都在关键处 抱着可以做一个大横厅去的,结果收房发现…… 这三个承重墙绝了!长在该长的地方![失望R][失望R] 设计需求: 一家三口👨👩👧 1、主卧要超大衣柜 2、孩子房 3、开放式书房!痛!该死的承重墙,这门还得开在阳台 4、有仪式感的入户
0
阅读:0
设计师人厘米酱
感谢大家的关注
作者最新文章
1
87㎡经典户型改造,想看三分离!
2
82㎡三房一卫经典户型改造方案
3
一个户型四版方案,想做洄游动线,码住喽!
4
想要一个大主卧套间!这个设计师有点厉害
5
第一次买房就买到第四代住宅,超美的阳台
6
两套打通,三个房间改成主卧套间
7
沙发C位观景:我家户型优化,只为这江景
8
传统四叶草户型改造,简单好用!
9
没什么,就觉得这个配色好看,再发一次!
10
砸掉一面墙,换来大横厅,附户型图🔥
热门分类
推荐
热榜
军事
NBA
体育
社会
明星八卦
娱乐
财经
科技
汽车
历史
国际
游戏
动漫
公益
搞笑
商业
互联网
数码
国际足球
房产
家居
时尚
科学探索
职场
育儿
股票
教育
影视
情感
热点
中国军情
武器
中国南海
中国足球
亚洲杯
科比
综合体育
CBA
投资
大咖秀
外汇
创业
风口
SUV
豪车
概念车
优惠
新能源
美国
欧洲
朝日韩
俄罗斯
孕期
街拍
婚姻
正能量
家居
TOP
1
大家会给自己的手机桌面“搞装修”吗?[doge]好奇心观察局
2
我敢说,这才是农村自建房设计的天花板,没有之一。
3
这房子设计的,出入真的不方便
4
这个房子坐着应该挺舒服的
5
慵懒的午后,阳光悄悄溜进客厅,把温柔洒在沙发上。换上一身柔软的家居服,卸下一天
6
全红婵家建的房子设计失误了,没想到对面邻居的房子建那么高,把自己房子的光线都挡了
7
我40岁,如狼似虎,我老公5年前走了,孩子上大学了,半年回来一次,留我一
8
董洁家的桌子中间竟然有条缝,这是什么设计?
9
这个老板的脑洞大开,原来的房子装修,把饭店般到这里来了,但是也不影响顾客的到来[
10
好奇!什么样的家庭家里放这么多现金,这是什么神仙家庭呀?[???]
家居
最新文章
1
王诗龄,从小家里装修就很豪华,光这颗大树就充满了无限生机。
2
来花都看看日产N6这小内饰质感真不错,我太喜欢这个座椅了
3
宋雨琦怎么这么美,这是在衣柜里拍的嘛
4
雅阁这玩意儿真闹心雅阁前挡风玻璃这个东西那么劣质吗
5
岚图梦想家的四座版——山河,差不多对标的是极氪009光辉内部装修很KTV,之前的
6
陕西,一女子新房装修,可做完卫生间防水后,却突然有点后悔,因为她发现自己花了几千
7
慵懒的午后,阳光悄悄溜进客厅,把温柔洒在沙发上。换上一身柔软的家居服,卸下一天
8
最不后悔做的就是飘窗床了犹豫好久做了飘窗床!次卧房间只有11.2㎡,又要做大衣
9
董洁家的桌子中间竟然有条缝,这是什么设计?
10
看完乐道和蔚来给到的同类型的前备箱解决方案基本上就是大沙发和精装修零跑D19要做