万益资讯网
⭕️户型优化-150㎡/拒绝平庸-斜切入户
设计师人厘米酱
2025-11-20 00:14:02
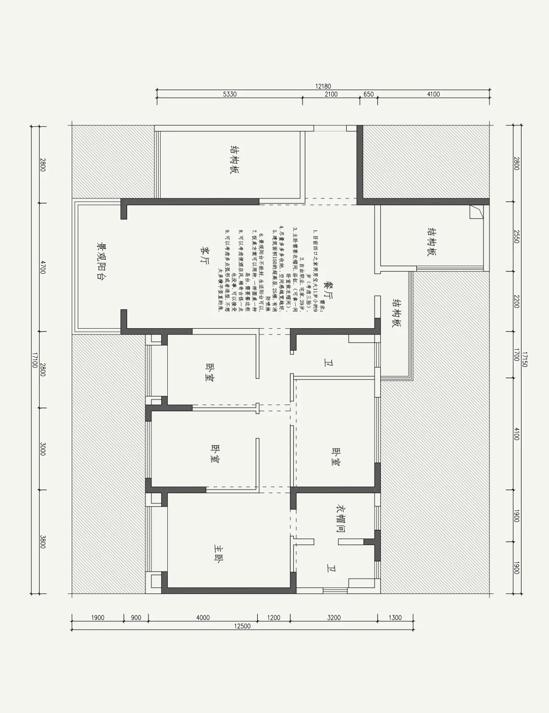
坐标:广东·湛江 设计需求: 一家四口(预备五口) 1、四房 2、主卧套间(主卫🛁、衣帽间) 3、💭三胎房(多功能) 4、餐厅中岛台 5、观景阳台不封窗户 希望特别点的布局方案
0
阅读:0
设计师人厘米酱
感谢大家的关注
作者最新文章
1
户型改造|我家户型承重墙有点奇葩
2
经典户型改造|最好的南卧室当然是留给女儿
3
太可惜了,标准麻将房|经典户型改造
4
看看女王大人的家🏠,四居室改一居室
5
家里有个电竞房,我还是会去电竞酒店
6
面食爱好者不会拒绝的大岛台设计【户型改造】
7
精装房改造|先从平面优化开始|
8
百套案例合集🏡定制你的艺术家居
9
户型改造|打造一个居家健身区|我爱运动
10
户型改造|100平的大平层视感|就爱坐在窗边
热门分类
推荐
热榜
军事
NBA
体育
社会
明星八卦
娱乐
财经
科技
汽车
历史
国际
游戏
动漫
公益
搞笑
商业
互联网
数码
国际足球
房产
家居
时尚
科学探索
职场
育儿
股票
教育
影视
情感
热点
中国军情
武器
中国南海
中国足球
亚洲杯
科比
综合体育
CBA
投资
大咖秀
外汇
创业
风口
SUV
豪车
概念车
优惠
新能源
美国
欧洲
朝日韩
俄罗斯
孕期
街拍
婚姻
正能量
家居
TOP
1
大家会给自己的手机桌面“搞装修”吗?[doge]好奇心观察局
2
我敢说,这才是农村自建房设计的天花板,没有之一。
3
这房子设计的,出入真的不方便
4
这个房子坐着应该挺舒服的
5
慵懒的午后,阳光悄悄溜进客厅,把温柔洒在沙发上。换上一身柔软的家居服,卸下一天
6
全红婵家建的房子设计失误了,没想到对面邻居的房子建那么高,把自己房子的光线都挡了
7
我40岁,如狼似虎,我老公5年前走了,孩子上大学了,半年回来一次,留我一
8
董洁家的桌子中间竟然有条缝,这是什么设计?
9
这个老板的脑洞大开,原来的房子装修,把饭店般到这里来了,但是也不影响顾客的到来[
10
好奇!什么样的家庭家里放这么多现金,这是什么神仙家庭呀?[???]
家居
最新文章
1
王诗龄,从小家里装修就很豪华,光这颗大树就充满了无限生机。
2
来花都看看日产N6这小内饰质感真不错,我太喜欢这个座椅了
3
宋雨琦怎么这么美,这是在衣柜里拍的嘛
4
雅阁这玩意儿真闹心雅阁前挡风玻璃这个东西那么劣质吗
5
岚图梦想家的四座版——山河,差不多对标的是极氪009光辉内部装修很KTV,之前的
6
陕西,一女子新房装修,可做完卫生间防水后,却突然有点后悔,因为她发现自己花了几千
7
慵懒的午后,阳光悄悄溜进客厅,把温柔洒在沙发上。换上一身柔软的家居服,卸下一天
8
最不后悔做的就是飘窗床了犹豫好久做了飘窗床!次卧房间只有11.2㎡,又要做大衣
9
董洁家的桌子中间竟然有条缝,这是什么设计?
10
看完乐道和蔚来给到的同类型的前备箱解决方案基本上就是大沙发和精装修零跑D19要做