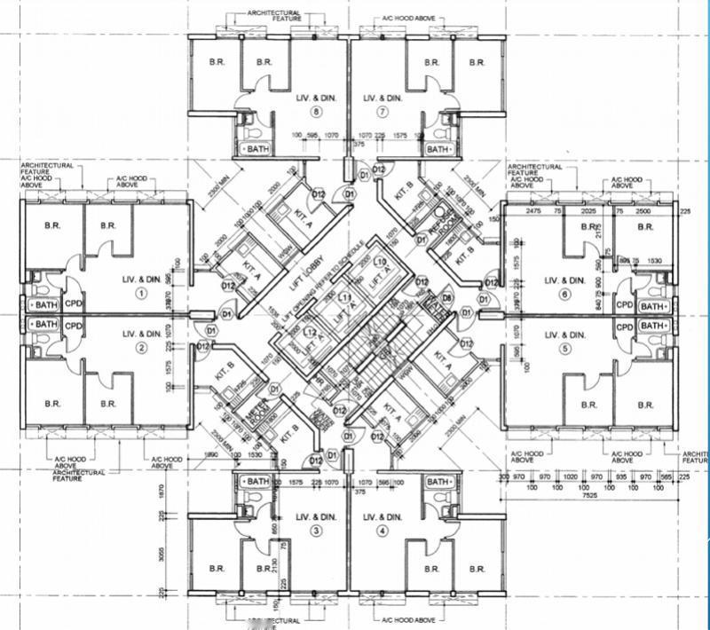
看了香港大埔大火楼盘的户型图 原来是塔楼。 这个在几十年前香港非常流行。 20年前国内引进香港房地产模式的时候 也建了很多塔楼,在英语里专门叫tower的。 广州东莞的楼盘里很多。 现在渐渐没有了,建的都是板楼了。 塔楼的主要结构就是中间有个柱子一样的结构,房子围着柱子建。 最大特点是没有南北通透的户型,但是有1/3面阳的户型。 导致塔楼里面可以装下50平米的鸽子户型。 也可以装下250平的豪宅户型。 有兴趣可以来广东看看这种房子。


看了香港大埔大火楼盘的户型图 原来是塔楼。 这个在几十年前香港非常流行。 20年前国内引进香港房地产模式的时候 也建了很多塔楼,在英语里专门叫tower的。 广州东莞的楼盘里很多。 现在渐渐没有了,建的都是板楼了。 塔楼的主要结构就是中间有个柱子一样的结构,房子围着柱子建。 最大特点是没有南北通透的户型,但是有1/3面阳的户型。 导致塔楼里面可以装下50平米的鸽子户型。 也可以装下250平的豪宅户型。 有兴趣可以来广东看看这种房子。


猜你喜欢
【4评论】【7点赞】
【7评论】【9点赞】
【2评论】【1点赞】
作者最新文章
热门分类
社会TOP
社会最新文章