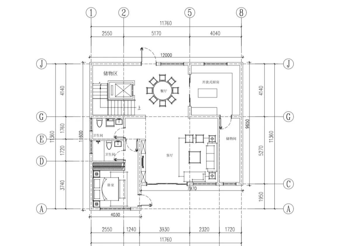
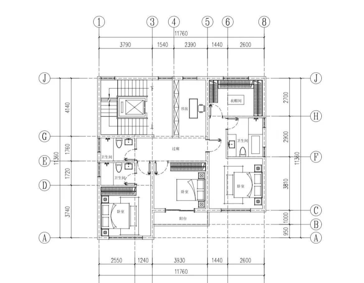
拆旧建新,前后花费58万[发怒][发怒] 房子还只是一个半成品, 不知道还要花多少钱,何日能入住? 是不是城里买房更划算? 说实话,老家建房基本上不住, 因为小孩上学,老人看病, 一家人必须在城里生活, 建房就是为了占住宅基地, 给未来的养老生活,多一条退路[捂脸][捂脸] 为了省钱,房屋采用砖混结构, 虽然今年水泥、钢筋和人工均有降价, 宅基地的面积只有120平, 上下3层半,没有考虑“罗马柱”, 但到这一步...已经花了58w了[流泪][流泪] 具体费用如下: 1、拆除+填地基 5w 2、水泥 4w 3、钢筋 6w 4、沙石 6w 5、人工 15w 6、水管电线 2w 7、 红砖 4w 8、坡顶木材1.12w 9、瓦片 0.7w 10、墙面水包砂粉刷 3.5w 11、铝合金门窗10w 12、 锌合金大门 0.6w 上面12项,共计费用58万。 对于你们比较懂建房的朋友, 这个砖混结构的自建房, 花费58万,贵不贵? 另外,类似这样3层半, 总面积约380平的自建房, 你们那里需要多少钱? #晒图笔记大赛#
















