万益资讯网
户型优化第4期|经典三房改二房-一个方案|
设计师人厘米酱
2025-11-13 08:07:07
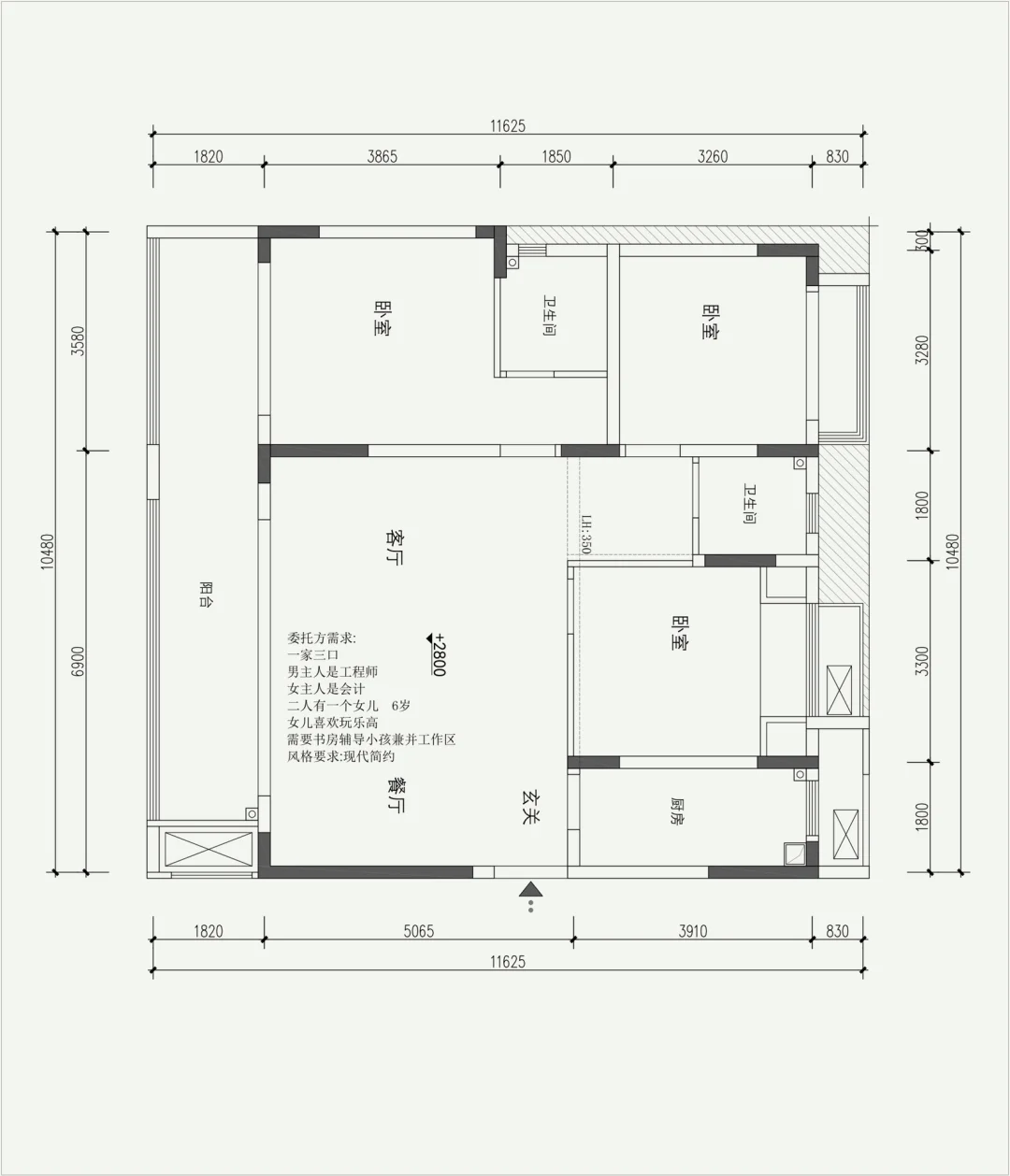
设计需求: 1、一家三口(男主人工程师,女主人会计,女儿) 2、客厅需要开阔空间,孩子的玩耍区(女儿喜欢乐高) 3、餐厅最好能有中岛台,长桌 4、书房(能和孩子一起学习,有单独的工作区) 5、主卧最好能有衣帽间,最好也要有工作台(男女主人都希望有自己的工作台) 6、儿童房趣味性点
0
阅读:0
设计师人厘米酱
感谢大家的关注
作者最新文章
1
户型优化第18期|常见户型的中西厨|三版方案
2
户型优化第15期|150平的旧房改造-3版方案|
3
户型优化第8期|四居室改三居室多样选择|
4
户型优化第5期|主播的家——五版方案
5
户型优化第4期|经典三房改二房-一个方案|
6
户型优化|99平三居室的大平层客厅|4版方案
7
户型优化|160平改造经典户型优化|精华版
8
户型优化|四居室的迷你餐厅蜕变|2版方案
9
户型优化|老小区钻石形户型的超级进化|
10
户型优化|130平三居室户型|优化前后对比
热门分类
推荐
热榜
军事
NBA
体育
社会
明星八卦
娱乐
财经
科技
汽车
历史
国际
游戏
动漫
公益
搞笑
商业
互联网
数码
国际足球
房产
家居
时尚
科学探索
职场
育儿
股票
教育
影视
情感
热点
中国军情
武器
中国南海
中国足球
亚洲杯
科比
综合体育
CBA
投资
大咖秀
外汇
创业
风口
SUV
豪车
概念车
优惠
新能源
美国
欧洲
朝日韩
俄罗斯
孕期
街拍
婚姻
正能量
家居
TOP
1
洗澡水温很高
2
大家会给自己的手机桌面“搞装修”吗?[doge]好奇心观察局
3
我敢说,这才是农村自建房设计的天花板,没有之一。
4
朋友家买的沙发,让我坐,我有点不敢呢[捂脸哭]
5
这房子设计的,出入真的不方便
6
这个房子坐着应该挺舒服的
7
慵懒的午后,阳光悄悄溜进客厅,把温柔洒在沙发上。换上一身柔软的家居服,卸下一天
8
全红婵家建的房子设计失误了,没想到对面邻居的房子建那么高,把自己房子的光线都挡了
9
我40岁,如狼似虎,我老公5年前走了,孩子上大学了,半年回来一次,留我一
10
我敢说,这才是一个人住的天花板房子
家居
最新文章
1
又一工业明珠,防水开关。
2
朋友家买的沙发,让我坐,我有点不敢呢[捂脸哭]
3
王诗龄,从小家里装修就很豪华,光这颗大树就充满了无限生机。
4
洗澡水温很高
5
我敢说,这才是一个人住的天花板房子
6
来花都看看日产N6这小内饰质感真不错,我太喜欢这个座椅了
7
宋雨琦怎么这么美,这是在衣柜里拍的嘛
8
雅阁这玩意儿真闹心雅阁前挡风玻璃这个东西那么劣质吗
9
岚图梦想家的四座版——山河,差不多对标的是极氪009光辉内部装修很KTV,之前的
10
陕西,一女子新房装修,可做完卫生间防水后,却突然有点后悔,因为她发现自己花了几千