万益资讯网
全国通用经典户型优化—只有89平方
设计师人厘米酱
2025-11-14 00:14:21
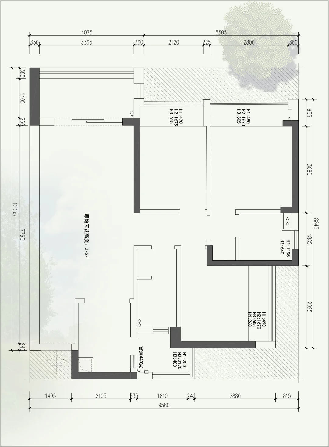
设计需求: 1、一家四口 2、男孩女孩都要有自己独立的卧室,要做书桌 3、主卧想要衣帽间不行也要一个大衣柜 4、想要一个吧台,尽量做吧 5、有个钢琴
0
阅读:5
猜你喜欢
小户型2.5米靠窗餐边柜,普通人的餐厨一体
装修
小户型装修
爱宇评家居
2025-11-18
意式极简风全屋定制柜子落地实景。装修灵感库家居装修全屋整柜定制全屋定制
衣柜
时尚清风轩
2025-11-18
北京现在也有三面带露台和客厅无柱转角落地窗的四代住宅了啊,今天去看了看样板间,上
【1点赞】
客厅
臧智渊
2025-11-17
郭家和申家,是邻居,中间隔着一条街道,郭家是非常气派三层洋房,申家是普通的小院儿
装修
李业粉
2025-11-18
设计师人厘米酱
感谢大家的关注
作者最新文章
1
抱着可以做大横厅买的房,结果收房时……
2
社交达人之家!大横厅整合西厨岛台+派对模式
3
经典户型改造/如何在一个卫生间做四分离
4
【让家成为成长乐园】互动学习型客厅改造计
5
户型改造/让空间见证成长每一步
6
**灵动四叶草,悦享大横厅** 一户四版方
7
答应我!想要大平层效果就这样做
8
105平四叶草户型也可以变150平大平层
9
常规户型改造—来不个不同的异形方案
10
一个人独享三居室,我的家有点不一样
热门分类
推荐
热榜
军事
NBA
体育
社会
明星八卦
娱乐
财经
科技
汽车
历史
国际
游戏
动漫
公益
搞笑
商业
互联网
数码
国际足球
房产
家居
时尚
科学探索
职场
育儿
股票
教育
影视
情感
热点
中国军情
武器
中国南海
中国足球
亚洲杯
科比
综合体育
CBA
投资
大咖秀
外汇
创业
风口
SUV
豪车
概念车
优惠
新能源
美国
欧洲
朝日韩
俄罗斯
孕期
街拍
婚姻
正能量
家居
TOP
1
大家会给自己的手机桌面“搞装修”吗?[doge]好奇心观察局
2
我敢说,这才是农村自建房设计的天花板,没有之一。
3
这房子设计的,出入真的不方便
4
这个房子坐着应该挺舒服的
5
慵懒的午后,阳光悄悄溜进客厅,把温柔洒在沙发上。换上一身柔软的家居服,卸下一天
6
全红婵家建的房子设计失误了,没想到对面邻居的房子建那么高,把自己房子的光线都挡了
7
我40岁,如狼似虎,我老公5年前走了,孩子上大学了,半年回来一次,留我一
8
董洁家的桌子中间竟然有条缝,这是什么设计?
9
这个老板的脑洞大开,原来的房子装修,把饭店般到这里来了,但是也不影响顾客的到来[
10
好奇!什么样的家庭家里放这么多现金,这是什么神仙家庭呀?[???]
家居
最新文章
1
王诗龄,从小家里装修就很豪华,光这颗大树就充满了无限生机。
2
来花都看看日产N6这小内饰质感真不错,我太喜欢这个座椅了
3
宋雨琦怎么这么美,这是在衣柜里拍的嘛
4
雅阁这玩意儿真闹心雅阁前挡风玻璃这个东西那么劣质吗
5
岚图梦想家的四座版——山河,差不多对标的是极氪009光辉内部装修很KTV,之前的
6
陕西,一女子新房装修,可做完卫生间防水后,却突然有点后悔,因为她发现自己花了几千
7
慵懒的午后,阳光悄悄溜进客厅,把温柔洒在沙发上。换上一身柔软的家居服,卸下一天
8
最不后悔做的就是飘窗床了犹豫好久做了飘窗床!次卧房间只有11.2㎡,又要做大衣
9
董洁家的桌子中间竟然有条缝,这是什么设计?
10
看完乐道和蔚来给到的同类型的前备箱解决方案基本上就是大沙发和精装修零跑D19要做