万益资讯网
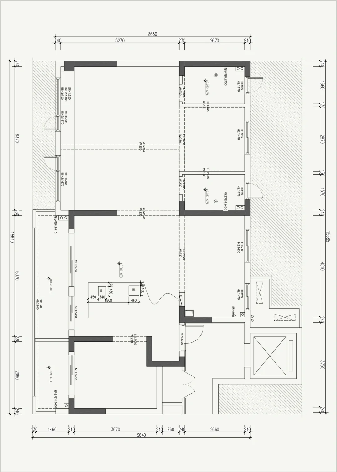
户型改造|40期-大平层5居室改3居室-4版方案
设计师人厘米酱
2025-11-16 00:07:28
设计需求: 1、三个房间(小孩房,老人房,主卧)主卧要带一个衣帽间 2、厨房可开可合 3、小孩房带书桌 4、主卫不要浴缸 5、阳台可封窗户
0
阅读:0
设计师人厘米酱
感谢大家的关注
作者最新文章
1
没错!这就是100 ㎡的大平层!—3版方案
2
两户打通秒变大平层/4版方案
3
被10万人围观的入户设计!赶紧来抄作业
4
全国通用经典户型优化分享—三版方案
5
这户型怎么改!这卫生间怎么跟厨房一起!
6
不常规户型的优化与整合/6版方案
7
这样的“长方形”该怎么办?让人头痛的户型!
8
户型改造|47期-67 ㎡小三居室就这么改造吧
9
户型改造|43期-57 ㎡三居室-够住吗?
10
户型改造|40期-大平层5居室改3居室-4版方案
热门分类
推荐
热榜
军事
NBA
体育
社会
明星八卦
娱乐
财经
科技
汽车
历史
国际
游戏
动漫
公益
搞笑
商业
互联网
数码
国际足球
房产
家居
时尚
科学探索
职场
育儿
股票
教育
影视
情感
热点
中国军情
武器
中国南海
中国足球
亚洲杯
科比
综合体育
CBA
投资
大咖秀
外汇
创业
风口
SUV
豪车
概念车
优惠
新能源
美国
欧洲
朝日韩
俄罗斯
孕期
街拍
婚姻
正能量
家居
TOP
1
洗澡水温很高
2
大家会给自己的手机桌面“搞装修”吗?[doge]好奇心观察局
3
我敢说,这才是农村自建房设计的天花板,没有之一。
4
朋友家买的沙发,让我坐,我有点不敢呢[捂脸哭]
5
这房子设计的,出入真的不方便
6
这个房子坐着应该挺舒服的
7
慵懒的午后,阳光悄悄溜进客厅,把温柔洒在沙发上。换上一身柔软的家居服,卸下一天
8
全红婵家建的房子设计失误了,没想到对面邻居的房子建那么高,把自己房子的光线都挡了
9
我40岁,如狼似虎,我老公5年前走了,孩子上大学了,半年回来一次,留我一
10
我敢说,这才是一个人住的天花板房子
家居
最新文章
1
又一工业明珠,防水开关。
2
朋友家买的沙发,让我坐,我有点不敢呢[捂脸哭]
3
王诗龄,从小家里装修就很豪华,光这颗大树就充满了无限生机。
4
洗澡水温很高
5
我敢说,这才是一个人住的天花板房子
6
来花都看看日产N6这小内饰质感真不错,我太喜欢这个座椅了
7
宋雨琦怎么这么美,这是在衣柜里拍的嘛
8
雅阁这玩意儿真闹心雅阁前挡风玻璃这个东西那么劣质吗
9
岚图梦想家的四座版——山河,差不多对标的是极氪009光辉内部装修很KTV,之前的
10
陕西,一女子新房装修,可做完卫生间防水后,却突然有点后悔,因为她发现自己花了几千